IN PARIS L'IMMOBILIERE DE NORMANDIE À PARIS
06.10.84.19.26 100, rue Lemercier PARIS 75017 France

75016 Paris Porte Dauphine
Appartement 4 pièces - 94m²

1 023 000 €

2
93 m²
4 pièces
2 chambres

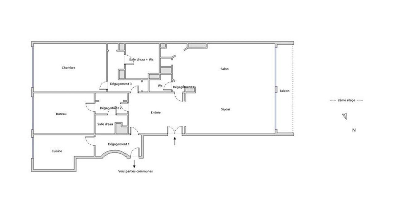
Quartier de la Porte-Dauphine, rue de la Faisanderie, au 2 -ème étage d'un immeuble de bon standing, appartement de 94 m² carrez avec balcon de 10 m² et parking au sous sol. Cet appartement traversant offre des volumes agréables. Il comprend une entrée de 10 m² ouvrant sur un double séjour de 32 m² flanqué d'un agréable balcon. Coté cour très calme, une cuisine avec cellier ( 12m²) , deux chambres de 15 m²avec chacune une salle d'eau privative. Une cave et un parking. Prévoir travaux de rénovation et rafraichissement. Copropriété très calme et sécurisée avec gardien à demeure.

Sectorisation Lycée JANSON DE SAILLY. A proximité, Metro rue de la Pompe, RER C avenue Henri Martin

Prix net vendeur 985000 euros

Honoraires fixe de 38 000 euros TTC soit 3,86% du prix net vendeur

Prox honoraires compris 1 023 000 euros

Contacter In Paris l'Immobilière de Normandie par téléphone au 06.10.84.19.26 ou par email pour la référence INPA72 :
5 + 4 =
- Prix hors honoraires : 985 000 €
- Honoraires à la charge de l'acquéreur : 3,86%
- Taxe foncière : 1200.00 €- Charges courantes provisionnelles annuelles : 6 120,00 €
-
- Les informations sur les risques auxquels ce bien est exposé sont disponibles sur le site Géorisques : www.georisques.gouv.fr
Diagnostic de performance énergétique : 226
Gaz à effet de serre : 39

Date du diagnostic : 01/01/2015


Diagnostic de performance énergétique